|

Entwurf Messestand:
WEGA Werbeagentur
Entwurf Messehaus:
Download Messehaus.jpg
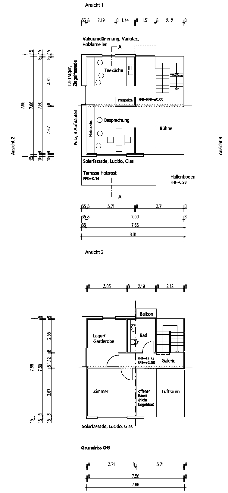
Grundrisse Messehaus:

Ansichten Messehaus:




Schnitt Messehaus:

Entwurf Messehaus:
Joachim Eble Architektur
Dipl. Ing.
Freier Architekt
Berliner Ring 47a
72076 Tübingen
Telefon: 07071/9694-0
Telefax: 07071/600912
Email: info@eble-architektur.de
|